DESIGN DE FACHADAS E INTERIORES A PARTIR DA PLANTA BAIXA
| Estado | Rio de Janeiro RJ Estado Rio de Janeiro RJ Jacarepaguá |
| Tipo de Anúncio | Profissional Oferta |
Tem uma planta ou apenas o terreno para construir a sua casa mas não tem idéia de como irá compor?
Dentro das normas técnicas e conceitos de ergonometria.
Faço medição, avaliação de insolação e direção dos ventos dominantes
Elaboração de croquis e maquete 3D.
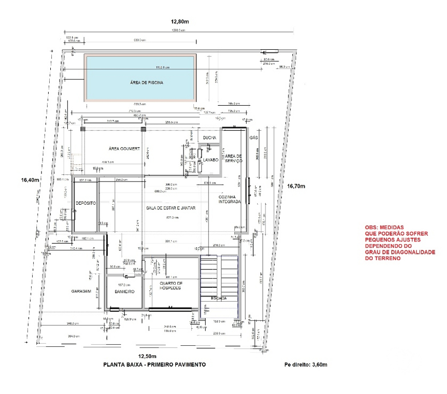
Planta baixa de medidas, situação, fluxo, pontos de instalação
Perspectivas humanizadas personificadas com técnica exclusiva de fotorealismo.
Relatório descritívo analítico.
Deixando claro não faço projeto para prefeitura mas para execução e os profissionais habilitados para dar aval e assinar caso necessário.
Possuo parceria com profissionais (arquitetos, engenheiros, empreiteiros, pedreiros, marceneiros, etc).
Entre em contato pelo whatsapp (21)99809-1713.
Grato pela prefêrência.
Antonio Carlos Alcantara designer de interior - UFRJ desenhista técnico de arquitetura (SENAC).
DESIGN DE FACHADAS E INTERIORES A PARTIR DA PLANTA BAIXA
- R$ p/h incall
- Jacarepagua
Envie uma mensagem
Mande uma mensagem
Email do anunciante
Ao contactar este anunciante você está concordando com os Termos e Condições do Vivalocal.
Economize tempo na próxima vez
Tenha acesso ao email dos anunciantes accessando sua conta no Vivalocal.
Crie uma contaVocê encontrou o que procurava?
< Voltar aos resultadosMande uma mensagem
Email do anunciante
Ao contactar este anunciante você está concordando com os Termos e Condições do Vivalocal.
Economize tempo na próxima vez
Tenha acesso ao email dos anunciantes accessando sua conta no Vivalocal.
Crie uma conta